Aceasta proprietate a fost deja vanduta! Pentru oferte similare contactati agentul














Camere
4
Suprafata utila
100 mp
Suprafata construita
111 mp
Bai
3
An constructie
2015
- ID:P130
- Nr. camere:4
- Nr. dormitoare:3
- S. utila:100.00 mp
- S. construita:111.00 mp
- S. teren:125.00 mp
- Nr. bucatarii:1
- Nr. bai:3
- Nr. balcoane:2
- Nr. parcari:1
- Nr. garaje:1
- Front stradal:8.00 m
- Nr. fronturi:1
- An constructie:2015
- Regim inaltime:P+1
Descriere
ILFOV IMOBILIAR - “O mutare isteata!“
Pipera-Voluntari casa Tuberozelor Residence acces din Matei Millo mobilata si utilata aproape de A3 si padure
Pret: 179.900 euro
Asa cum v-am obisnuit COMISION 0
Casa este situata foarte aproape de Autostrada A3 Bucuresti-Ploiesti; statie autobuz la 150 m la 300 m de padure gradinita Avangarde la 150m parc Lidl club de echitatie; in sept. 2022 se deschide centrul comercial Lemon Retail Park Mall Promenada Mall Baneasa.
Casa este construita pe structura de beton cu zidarie interioara si exterioara din caramida Porotherm termosistem Caparol de 8 cm acoperis tigla metalica Decra cu acoperire de piatra naturala.
Finisajele sunt de cea mai buna calitate: compartimentari interioare din caramida scara interioara cu finisaj de lemn si balustrade din sticla usi de interior cu furnir de lemn.
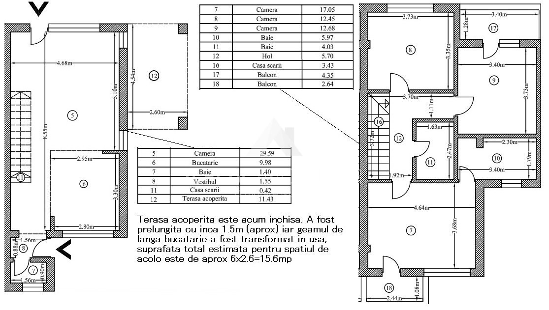
Parter: living bucatarie grup sanitar hol terasa.
Etaj: 3 dormitoare 2 bai 2 balcoane pod inalt izolat cu fereastra tip Velux.
In plus casa mai beneficiaza si de o terasa inchisa in suprafata de 156 mp inchisa cu termopan careia i se poate da orice utilitate: loc de joaca sala de forta crama etc.
Casa se vinde finisata premium complet mobilata si utilata.
Beneficiaza de multe spatii de depozitare inclusiv un pod mansardat de aprox. 30 mp.
2 de locuri parcare.
Gradina foarte ingrijita si curata.
Casa este racordata la toate utilitatile avand bransamente la reteua de canalizare si alimentare cu apa a orasului gaze si energie electrica.
Drum asfaltat alee betonata si iluminata.
Acceptam inspectie tehnica imobiliara.
Oferim broker pentru obtinerea unui eventual credit imobiliar.
Daca doriti o colaborare cu agentia noastra ne puteti scrie pe adresa de email sau va asteptam la sediul situat in Otopeni str. 23August nr. 152A Ilfov.
Contact:
0720.917.777 Petru Orzoi - Consultant Imobiliar
petru@ilfovimobiliar.ro
Citeste mai mult
Pipera-Voluntari casa Tuberozelor Residence acces din Matei Millo mobilata si utilata aproape de A3 si padure
Pret: 179.900 euro
Asa cum v-am obisnuit COMISION 0
Casa este situata foarte aproape de Autostrada A3 Bucuresti-Ploiesti; statie autobuz la 150 m la 300 m de padure gradinita Avangarde la 150m parc Lidl club de echitatie; in sept. 2022 se deschide centrul comercial Lemon Retail Park Mall Promenada Mall Baneasa.
Casa este construita pe structura de beton cu zidarie interioara si exterioara din caramida Porotherm termosistem Caparol de 8 cm acoperis tigla metalica Decra cu acoperire de piatra naturala.
Finisajele sunt de cea mai buna calitate: compartimentari interioare din caramida scara interioara cu finisaj de lemn si balustrade din sticla usi de interior cu furnir de lemn.
Parter: living bucatarie grup sanitar hol terasa.
Etaj: 3 dormitoare 2 bai 2 balcoane pod inalt izolat cu fereastra tip Velux.
In plus casa mai beneficiaza si de o terasa inchisa in suprafata de 156 mp inchisa cu termopan careia i se poate da orice utilitate: loc de joaca sala de forta crama etc.
Casa se vinde finisata premium complet mobilata si utilata.
Beneficiaza de multe spatii de depozitare inclusiv un pod mansardat de aprox. 30 mp.
2 de locuri parcare.
Gradina foarte ingrijita si curata.
Casa este racordata la toate utilitatile avand bransamente la reteua de canalizare si alimentare cu apa a orasului gaze si energie electrica.
Drum asfaltat alee betonata si iluminata.
Acceptam inspectie tehnica imobiliara.
Oferim broker pentru obtinerea unui eventual credit imobiliar.
Daca doriti o colaborare cu agentia noastra ne puteti scrie pe adresa de email sau va asteptam la sediul situat in Otopeni str. 23August nr. 152A Ilfov.
Contact:
0720.917.777 Petru Orzoi - Consultant Imobiliar
petru@ilfovimobiliar.ro
Specificatii
Petru Orzoi
0720917777
Esti interesat de aceasta proprietate ?