











Camere
4
Suprafata utila
137.81 mp
Suprafata construita
171.36 mp
Bai
3
An constructie
2026
- ID:P330
- Nr. camere:4
- Nr. dormitoare:3
- S. utila:137.81 mp
- S. construita:171.36 mp
- S. teren:387.00 mp
- Nr. bucatarii:1
- Nr. bai:3
- Nr. balcoane:1
- Nr. parcari:2
- An constructie:2026
- Structura rezistenta:Beton
- Regim inaltime:P+1
Descriere
ILFOV IMOBILIAR - “O mutare isteață!“
TUNARI - Vilă individuală superbă P+1+Pod, 171mp și 387 mp teren, 4 camere și 3 băi, finisaje personalizate
Preț - 269.000 euro.
Nu se percepe tva.
Așa cum v-am obișnuit, COMISION 0.
Vă propunem spre vânzare o casă individuală, situată într-o zonă în plină dezvoltare din comuna Tunari, pe strada Teiului. Locuința oferă un spațiu generos, finisaje de calitate și confortul ideal pentru o familie.
În apropiere, la doar 3 minute, se află campusul școlar Mark Twain cu grădiniță, școală primară și gimnaziu; Școala Americană este la 7 min. WorldClass, Lidl, restaurante, zona de shopping, la 5 minute, în zona Cosmopolis.
Situată într-o zonă liniștită din Tunari, la 3 minute de centru, această proprietate este un cămin excelent pentru orice familie.
Acces ușor atât cu mașina proprie dar și cu transportul în comun către DN1 dar și către Pipera și A0.
Dacă jobul dvs. este în zona de Nord sau dacă pur și simplu visați la o locuință spațioasă, confortabilă, cu absolut tot ce vă este necesar și mai mult decât atât, aceasta este casa potrivită.
Construcție solidă, din cărămidă și beton armat, cu izolație exterioară de polistiren de 15cm. Tâmplăria cu geam tripan, acoperișul învelit cu țiglă ceramică și sistemul de încălzire prin pardoseală, contribuie la cheltuieli de întreținere foarte reduse.
Stradă liniștită, cedată către Primăria Tunari. Branșamentele sunt individuale: gaz, curent, puț propriu și fosă septică ecologică, fibră optică.
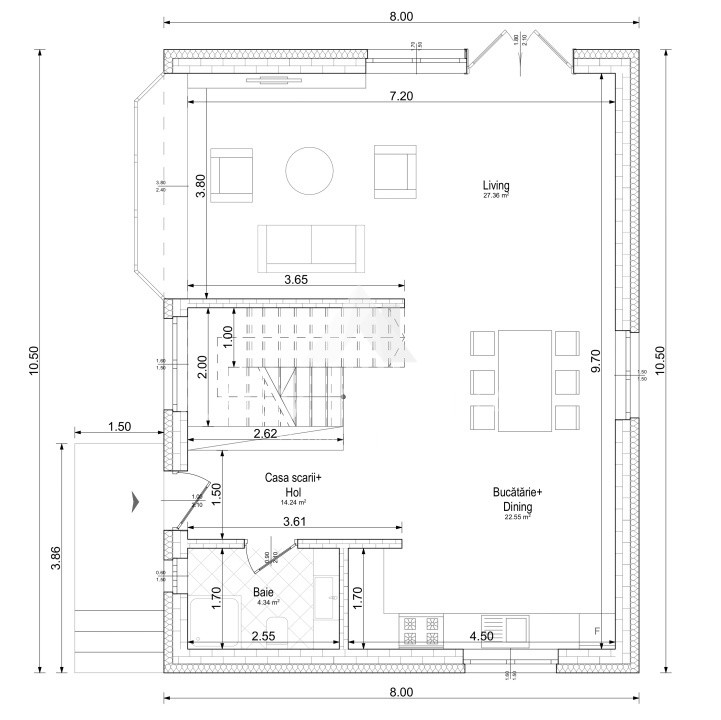
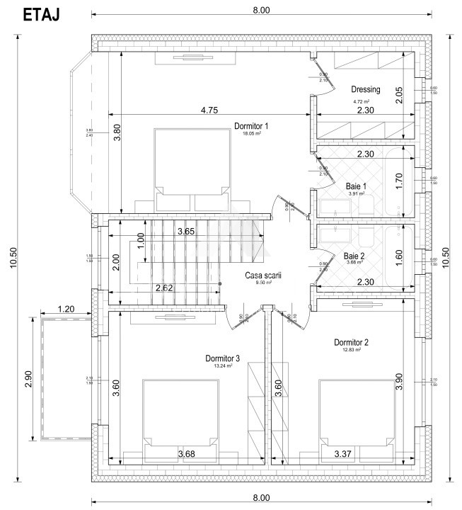
Având o suprafață totală de 171mp iar cea utilă de 138mp, interiorul casei este foarte bine compartimentat: living-room generos, bucătărie open-space cu zonă de dining, 3 dormitoare luminoase, 3 băi moderne, spații de depozitare.
Oferim broker pentru obținerea unui eventual credit imobiliar - comision zero.
Acceptăm inspecție tehnică imobiliară.
Vă așteptăm și la sediul nostru situat în Otopeni, Str. 23 August, nr. 152A.
Contact:
0720.917.777 Petru Orzoi - Consultant Imobiliar
petru@ilfovimobiliar.ro
Citeste mai mult
TUNARI - Vilă individuală superbă P+1+Pod, 171mp și 387 mp teren, 4 camere și 3 băi, finisaje personalizate
Preț - 269.000 euro.
Nu se percepe tva.
Așa cum v-am obișnuit, COMISION 0.
Vă propunem spre vânzare o casă individuală, situată într-o zonă în plină dezvoltare din comuna Tunari, pe strada Teiului. Locuința oferă un spațiu generos, finisaje de calitate și confortul ideal pentru o familie.
În apropiere, la doar 3 minute, se află campusul școlar Mark Twain cu grădiniță, școală primară și gimnaziu; Școala Americană este la 7 min. WorldClass, Lidl, restaurante, zona de shopping, la 5 minute, în zona Cosmopolis.
Situată într-o zonă liniștită din Tunari, la 3 minute de centru, această proprietate este un cămin excelent pentru orice familie.
Acces ușor atât cu mașina proprie dar și cu transportul în comun către DN1 dar și către Pipera și A0.
Dacă jobul dvs. este în zona de Nord sau dacă pur și simplu visați la o locuință spațioasă, confortabilă, cu absolut tot ce vă este necesar și mai mult decât atât, aceasta este casa potrivită.
Construcție solidă, din cărămidă și beton armat, cu izolație exterioară de polistiren de 15cm. Tâmplăria cu geam tripan, acoperișul învelit cu țiglă ceramică și sistemul de încălzire prin pardoseală, contribuie la cheltuieli de întreținere foarte reduse.
Stradă liniștită, cedată către Primăria Tunari. Branșamentele sunt individuale: gaz, curent, puț propriu și fosă septică ecologică, fibră optică.
Având o suprafață totală de 171mp iar cea utilă de 138mp, interiorul casei este foarte bine compartimentat: living-room generos, bucătărie open-space cu zonă de dining, 3 dormitoare luminoase, 3 băi moderne, spații de depozitare.
Oferim broker pentru obținerea unui eventual credit imobiliar - comision zero.
Acceptăm inspecție tehnică imobiliară.
Vă așteptăm și la sediul nostru situat în Otopeni, Str. 23 August, nr. 152A.
Contact:
0720.917.777 Petru Orzoi - Consultant Imobiliar
petru@ilfovimobiliar.ro
Specificatii
Curent
Gaz
Put
Fosa septica
Fibra optica
Utilitati in zona
Centrala proprie
Izolatie Exterior
Vopsea lavabila
Faianta
Parchet
Gresie
Ferestre PVC
Ferestre Termopan
Usa intrare Metal
Usa interior Lemn
WC Serviciu
Bucatarie Nemobilata
Apometre
Contor gaz
Partial mobilat
Curte
Gradina
Petru Orzoi
0720917777
Esti interesat de aceasta proprietate ?