













Camere
4
Suprafata utila
132.29 mp
Suprafata construita
174.26 mp
Bai
3
An constructie
2024
- ID:P32
- Nr. camere:4
- Nr. dormitoare:3
- S. utila:132.29 mp
- S. terase:10.00 mp
- S. construita:174.26 mp
- S. teren:272.00 mp
- Nr. bucatarii:1
- Nr. bai:3
- Nr. parcari:3
- Front stradal:18.00 m
- Nr. fronturi:1
- An constructie:2024
- Structura rezistenta:Beton
- Regim inaltime:P+1
- Clasa energetica:A
Descriere
ILFOV IMOBILIAR – „O mutare isteață!”
CRĂIȚELOR BOUTIQUE OTOPENI – Ultimele 2 case disponibile din cele 5 | Gated community | Construcții finalizate | Buget pentru finisare
Preț de la: 209.000 EUR + TVA (la alb)
Asa cum v-am obisnuit, COMISION 0.
Un ansamblu intim, format din 5 case single, construite cu responsabilitate și atenție la detalii.
Casele sunt amplasate în faza a doua a proiectului, cu acces separat pe un drum amenajat, într-o zonă liniștită, cu trafic redus. Prin drumul de servitute se ajunge rapid (pe jos) în zona centrală a Otopeniului, chiar sub pasarela pietonală, lângă stațiile de autobuz și viitoarea stație de metrou.
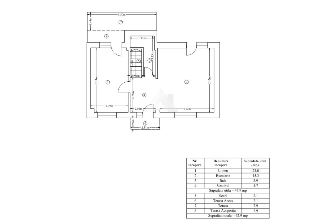
CASA SINGLE TIP 1 – P+1+M
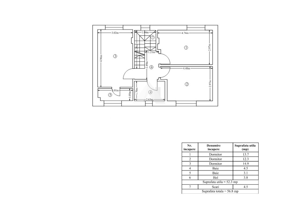
Suprafață construită: 219 mp
Suprafață utilă (cu terasă): 163 mp
Teren: 245 mp
Disponibilitate: 1/2 unități
Preț: 243.000 EUR + TVA
CASA SINGLE TIP 2 – P+1
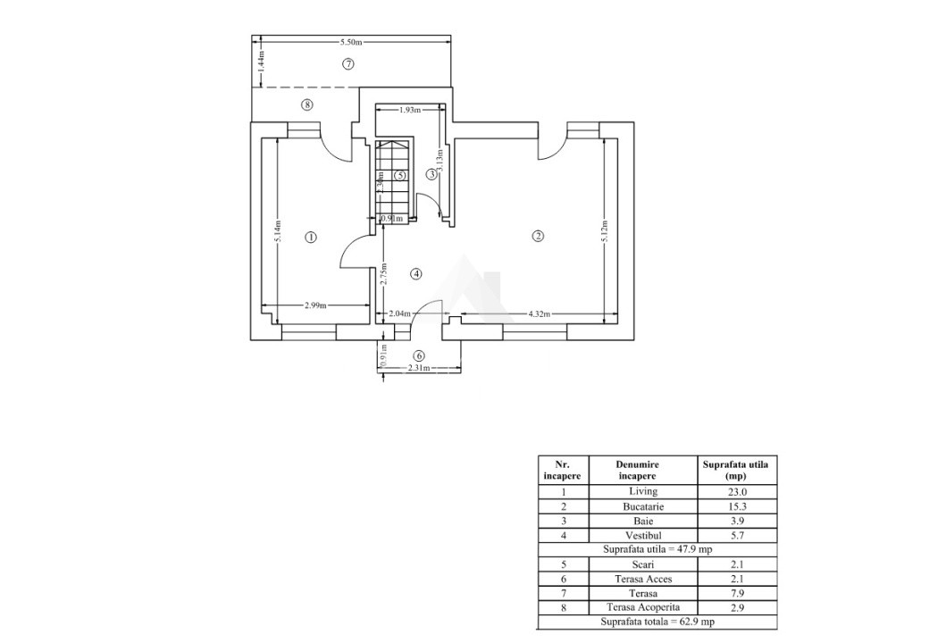
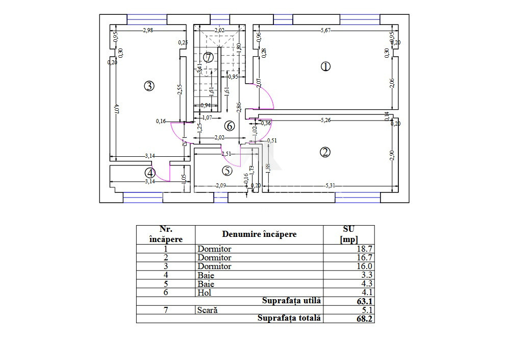
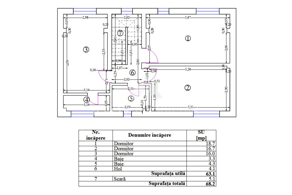
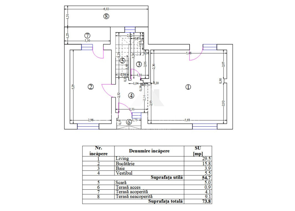
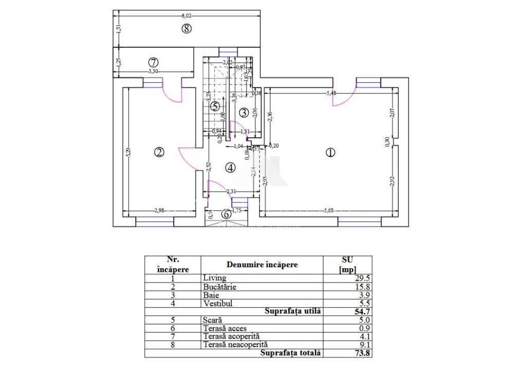
Suprafață construită: 174,26 mp
Suprafață utilă (cu terasă): 132,29 mp
Teren: 272 mp
Disponibilitate: 1/3 unități
Preț: 229.000 EUR + TVA
Preț special: 209.000 EUR + TVA (la alb)
CONSTRUCȚII DE CALITATE
Structură pe cadre de beton armat
Pereți din cărămidă (exterior + interior)
Tâmplărie tripan
Încălzire în pardoseală
Centrală proprie
Branșamente individuale
2 locuri de parcare amenajate în fața fiecărei case
Buget inclus pentru personalizarea finisajelor
Un proiect boutique pentru cei care caută liniște, confort și intimitate în Otopeni.
Oferim consultanță prin broker pentru obținerea unui eventual credit imobiliar.
Dacă doriți o colaborare cu agenția noastră, ne puteți scrie pe adresa de e-mail sau ne puteți vizita la sediul din Otopeni, Str. 23 August nr. 152A, Ilfov.
Contact:
vanzari@ilfovimobiliar.ro
0733 041 859 – Costin Ștefan, Broker/Owner
Citeste mai mult
CRĂIȚELOR BOUTIQUE OTOPENI – Ultimele 2 case disponibile din cele 5 | Gated community | Construcții finalizate | Buget pentru finisare
Preț de la: 209.000 EUR + TVA (la alb)
Asa cum v-am obisnuit, COMISION 0.
Un ansamblu intim, format din 5 case single, construite cu responsabilitate și atenție la detalii.
Casele sunt amplasate în faza a doua a proiectului, cu acces separat pe un drum amenajat, într-o zonă liniștită, cu trafic redus. Prin drumul de servitute se ajunge rapid (pe jos) în zona centrală a Otopeniului, chiar sub pasarela pietonală, lângă stațiile de autobuz și viitoarea stație de metrou.
CASA SINGLE TIP 1 – P+1+M
Suprafață construită: 219 mp
Suprafață utilă (cu terasă): 163 mp
Teren: 245 mp
Disponibilitate: 1/2 unități
Preț: 243.000 EUR + TVA
CASA SINGLE TIP 2 – P+1
Suprafață construită: 174,26 mp
Suprafață utilă (cu terasă): 132,29 mp
Teren: 272 mp
Disponibilitate: 1/3 unități
Preț: 229.000 EUR + TVA
Preț special: 209.000 EUR + TVA (la alb)
CONSTRUCȚII DE CALITATE
Structură pe cadre de beton armat
Pereți din cărămidă (exterior + interior)
Tâmplărie tripan
Încălzire în pardoseală
Centrală proprie
Branșamente individuale
2 locuri de parcare amenajate în fața fiecărei case
Buget inclus pentru personalizarea finisajelor
Un proiect boutique pentru cei care caută liniște, confort și intimitate în Otopeni.
Oferim consultanță prin broker pentru obținerea unui eventual credit imobiliar.
Dacă doriți o colaborare cu agenția noastră, ne puteți scrie pe adresa de e-mail sau ne puteți vizita la sediul din Otopeni, Str. 23 August nr. 152A, Ilfov.
Contact:
vanzari@ilfovimobiliar.ro
0733 041 859 – Costin Ștefan, Broker/Owner
Specificatii
Curent
Apa
Canalizare
Gaz
Fibra optica
Centrala proprie
Incalzire pardoseala
Izolatie Exterior
Vopsea lavabila
Faianta
Parchet
Gresie
Ferestre PVC
Usa intrare PVC
Usa interior Celulare
Ionut Costin Stefan
0733 041 859
Esti interesat de aceasta proprietate ?